通知:E拓建筑网正式更名为拓筑在线!

拓筑在线

 找回密码
 快速注册

QQ登录

只需一步,快速开始

微信登录

微信扫一扫,快速登录

综合商场设计


[版块:课程设计·作业库] [分类:商场] [复制链接] 报告无效帖子查看: 22137|回复: 89   
拓城校尉|少峰 发表于 2012-12-12 13:36:32 | 显示全部楼层
发帖得20e币  e币充值  开通VIP会员  快速免费获取e币
本帖最后由 少峰 于 2012-12-19 15:47 编辑

      这是进入大三的第一个课程设计作业,为期7周,设计题目是综合商场设计。
      这次设计与之前大一,大二接触的设计不用之处:1.用地紧张;2.老师更加讲究设计规范,不能任由学生自己凭空想象不切实际的方案;3.讲求实用性,功能性,与实际生活相联系;4.不能在造型上追求过多的创意,而是在解决功能分区,注重公建设计犯规,空间感受,立面设计等上花功夫,注重细节,实事求是。
      设计任务:基地位于广州市越秀区大沙头路与大沙头四马路交界口东北象限处,紧邻海印商圈,交通便利,用地面积6678㎡。为改善周边购物环境、满足居民的消费需求,拟新建一座中型综合商场。基地位于十字路口,南面是大沙头路,西面是大沙头四马路,东面为东湖路和海印桥的引桥,北面为6层住宅楼。基地周边主要为商业及住宅用地。 nEO_IMG_商场地形图2012.9.3(毫米)-Model.jpg
    (基地地形图)
     设计要求:容积率≤1.8,建筑密度≤35%,绿地率≥30%;计算容积率建筑面积≤12000㎡;建筑高度<24米;建筑退缩要求:沿大沙头四马路退缩≥18米,沿大沙头路退缩≥10米,沿东湖路退缩≥15米,退北面住宅≥0.7H且≥8米
     设计内容:地上建筑面积包括但不限于:营业厅8000㎡;顾客休闲区1000㎡(包括咖啡、餐饮);商品分库4-5间,每间100㎡;管理用房8-10间,每间30㎡;设备用房4-5间,每间20㎡;消防控制中心30㎡;并按要求设置公共卫生间等。地下建筑面积包括但不限于:设备用房600㎡(其中:空调机房150㎡、、发电机房100㎡、变压器房50㎡、高压配电房100㎡、低压配电房100㎡、水泵房30㎡及消防水池70㎡);主库房1200㎡;车位控制要求:室外停车位15个,地下停车位48个(地下车库可考虑货车专用卸货位置)
      
      设计思考:1.海印商圈寸土寸金,而场地用地紧张,如何善于利用每一寸土地,达到商场的最大利益化。
                        2.现代的商场缺少人性化设计,在满足商场基本功能之外,是否应该更多地从消费者的角度出发
                        3.良好的商场消费氛围对于商场至关重要,设计应注重内部空间的营造,并且如何与周边环境相联系,带动整个商圈的发展
      本次设计是本人大学课程设计第一次尝试电脑出图,望各位同学指导,指出不足,给点宝贵的意见与建议谢谢~
      这是我的正图:

nEO_IMG_正图1.jpg nEO_IMG_正图2.jpg nEO_IMG_正图3.jpg nEO_IMG_正图4.jpg
     这是设计前期的场地分析:
正图1_副本.jpg nEO_IMG_场地分析 (2).jpg
商场立面:
nEO_IMG_立21面_副本.jpg nEO_IMG_立面_副本.jpg nEO_IMG_立面w_副本.jpg
商场主入口广场: nEO_IMG_效果图wq.jpg
次入口广场: nEO_IMG_效果图.jpg
其他的效果图: 123.jpg (前期的效果图雏形)
nEO_IMG_商场 (2).jpg
商场的其他角度与周边环境: nEO_IMG_效果图.jpg
nEO_IMG_效果图1.jpg nEO_IMG_效果图2.jpg
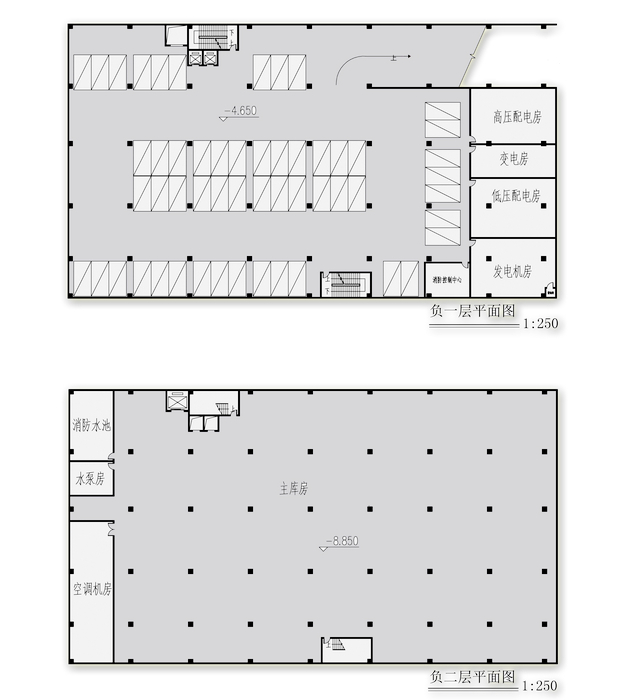
这次商场是第一次接触地下层的设计(主要是车库和设备用房),这是地下层的平面: nEO_IMG_正图4_副本.jpg
总的来说,这是商场设计做得很累,但是却学到很多东西,相比以前,不再过多的空想,浮夸,而是踏踏实实。设计依然存在很多的不足,如内部空间的处理,立面的细节,空中花园的处理等,希望通过与大家分享,得到大家的不同看法,这样对我的提升有更大的帮助,谢谢~

海印综合商场.rar

1.09 MB, 下载积分: e币 -2  e币充值 VIP免e币

海印商场su

评分

参与人数 5e币 +133 收起 理由
楚兮 + 8 谢谢分享,刚好现在要做商场设计
719896353 + 5 交流多进步,碰撞思维火花最珍贵。
beinornow + 40 交流多进步,碰撞思维火花最珍贵。
mnhy888 + 30 交流多进步,碰撞思维火花最珍贵。
深圳老梁 + 50 交流多进步,碰撞思维火花最珍贵。

查看全部评分

拓都将军|nicky6000 发表于 2012-12-12 14:09:30 | 显示全部楼层
发帖得20e币  e币充值  开通VIP会员  快速免费获取e币
感觉不错啊,我最近正好也在做一个商场,我看一下你商场只有三部楼梯,可能疏散距离够了,疏散宽度可能达不到要求。

点评

很不错啊,求su模型,可以的话发到我邮箱,229227168@qq.com 多向楼主学习学习  发表于 2013-5-23 22:58
拓土新兵|zypadon 发表于 2012-12-12 15:18:14 | 显示全部楼层
发帖得20e币  e币充值  开通VIP会员  快速免费获取e币
一个学习过程总有什么不足是很正常,慢慢积累就是。亮点才是决定性的。就觉得场那周边孤孤单单的绿化与空旷的广场有点单薄,立面上的线条分割我觉得要是结合体块的话就不会显得无力了!
拓城校尉|q5083033 发表于 2012-12-12 16:09:04 | 显示全部楼层
发帖得20e币  e币充值  开通VIP会员  快速免费获取e币
图出的很不错的啊 呵呵 给赞个
拓城校尉|wulinfeng68 发表于 2012-12-12 16:19:21 | 显示全部楼层
发帖得20e币  e币充值  开通VIP会员  快速免费获取e币
看着挺眼熟的
 楼主 | 拓城校尉|少峰 发表于 2012-12-12 16:59:49 | 显示全部楼层
发帖得20e币  e币充值  开通VIP会员  快速免费获取e币

第一次深入接触这些防火疏散规范的东西,感觉枯燥乏味。我们老师要求每部楼梯宽度达到3.9m以下就行
拓都将军|nicky6000 发表于 2012-12-12 17:56:37 | 显示全部楼层
发帖得20e币  e币充值  开通VIP会员  快速免费获取e币
少峰 发表于 2012-12-12 16:59
第一次深入接触这些防火疏散规范的东西,感觉枯燥乏味。我们老师要求每部楼梯宽度达到3.9m以下就行

嗯,慢慢来就可以了~说真的,你这个已经做的很好了
拓乡士官|笨笨00 发表于 2012-12-12 19:10:40 | 显示全部楼层
发帖得20e币  e币充值  开通VIP会员  快速免费获取e币
"2.老师更加讲究设计规范,不能任由学生自己凭空想象不切实际的方案;3.讲求实用性,功能性,与实际生活相联系;4.不能在造型上追求过多的创意,而是在解决功能分区,注重公建设计犯规,空间感受,立面设计等上花功夫,注重细节,实事求是。"
------------------------------------------------------------------------
由于图面太小,我来简单说两句:1、总图设计部分,起码应处理好如下几条流线关系:人员流线(入口);车辆流线;货运流线。2、你计算过消防疏散要求吗,图中明显不满足消防要求。3、二层及二层以上,人流动线有问题,扶梯位置明显不合理,造成西侧商场成为人流死角。平面应多考虑人流动线和商业铺面布置。4、立面商业气氛不够。
不过作为一个学生作业以经非常不错了。
 楼主 | 拓城校尉|少峰 发表于 2012-12-12 20:02:54 | 显示全部楼层
发帖得20e币  e币充值  开通VIP会员  快速免费获取e币
笨笨00 发表于 2012-12-12 19:10
"2.老师更加讲究设计规范,不能任由学生自己凭空想象不切实际的方案;3.讲求实用性,功能性,与实际生活相联 ...

首先谢谢您花了时间仔细看我的内容,给予宝贵的建议,指出的几点要求都是我的不足之处,还有待更多地改进,设计规范对于很多学生来说,都是枯燥的,这是我们学生的通病,这确实要认认真真对待,另外,我觉得我的已满足疏散要求,三部楼梯,所以你所指的不满足恕我愚昧,望详细讲解,谢谢;商场的人流设计至关重要,而扶梯的位置对于人流问题至关重要,但我当时真的没花太多时间在扶梯的布置上,这是我的疏忽,下次我会吸取的,谢谢您(ps:不过这次的设计任务老师只要求我们每层设两部电梯,一上一下,这是否不满足要求?);另外,关于商场立面设计,一直围绕着如何营造商业氛围,看了很多资料,也实地参考了很多商场,想着想营造大实大虚的大气风格,而且通过立面的广告化达到商场的利益化,但后来交了作业,仔细再思考,自己的设计确实欠缺氛围,不单单是照搬几个广告牌就可以突出商业氛围,应该更多地从设计的角度出发,有想过用比较现代,流线的手法,望指点。           不管怎样,真的很感谢你的意见,谢谢
拓都将军|nicky6000 发表于 2012-12-12 20:18:50 | 显示全部楼层
发帖得20e币  e币充值  开通VIP会员  快速免费获取e币
少峰 发表于 2012-12-12 20:02
首先谢谢您花了时间仔细看我的内容,给予宝贵的建议,指出的几点要求都是我的不足之处,还有待更多地改进 ...

消防疏散不是满足疏散距离就可以了,还有一个疏散宽度的控制。所以三步楼梯可能不够啊。你三部做成剪刀梯可能可以。
拓邦元帅|南越吴声 发表于 2012-12-12 21:21:07 | 显示全部楼层
发帖得20e币  e币充值  开通VIP会员  快速免费获取e币
做的还可以
拓邦元帅|南越吴声 发表于 2012-12-12 21:24:25 | 显示全部楼层
发帖得20e币  e币充值  开通VIP会员  快速免费获取e币
做的还可以
拓都将军|tommy 发表于 2012-12-12 22:56:30 | 显示全部楼层
发帖得20e币  e币充值  开通VIP会员  快速免费获取e币
学习楼主
拓都将军|670406163 发表于 2012-12-19 10:35:35 | 显示全部楼层
发帖得20e币  e币充值  开通VIP会员  快速免费获取e币
交流多进步,碰撞思维火花最珍贵。
拓邑团练|wenshipang 发表于 2012-12-19 12:37:09 | 显示全部楼层
发帖得20e币  e币充值  开通VIP会员  快速免费获取e币
,学生,还是厉害的啊
您需要登录后才可以回帖 登录 | 快速注册 微信登录

农村自建房造型设计
农村自建房造型设计
前面两个是大致的平面布局,后面是一些想要的风格意向,但是现在造型被限制的很死,场地限制,整体平面布局偏正方形,因为节假日居住的人数较多,目前平面设置了
  安徽阿才  hzl龙最后回复于 2025-10-17 建筑师讨论区

GBT50104-2010 建筑制图标准规范
GBT50104-2010 建筑制图标准规范
GBT50104-2010 建筑制图标准规范
  喜啦啦  喜啦啦最后回复于 2025-10-16 快速发帖

城市更新文本
城市更新文本
放上一些截图 **** 本内容被作者隐藏 ****
  牧野先生  evan298最后回复于 2025-10-15 设计文本

Lumion 10.5 解压即可使用 免断网破解版
Lumion 10.5 解压即可使用 免断网破解版
看到好多小伙伴安装lumion其他版本的时候出现各种各样的问题,因为繁琐的步骤和其他问题总有人安装失败,这次提供的版本解压即可使用,不需要断网 破解 替换文件
  sadapple  18082364985最后回复于 2025-10-15 虚拟化表现

Enscape高级渲染参数预设合集(宝藏参数)
Enscape高级渲染参数预设合集(宝藏参数)
和所有软件的参数预设类似,仅仅需要在场景中简单加载渲染参数,即可得到已经调整好的渲染效果。让效果更上一层楼! 包含百余款渲染
  sadapple  Cialis_最后回复于 2025-10-13 虚拟化表现

[英国版]Wallpaper 设计业权威杂志 2025年11期
[英国版]Wallpaper 设计业权威杂志 2025年11期
2025年精选30种国外【建筑+景观+室内】设计杂志超大合集 全年订阅链接:https://www.eeeetop.com/forum.php?mod=viewthread&tid=75981
  深圳老梁  深圳老梁最后回复于 2025-10-13 艺术设计

[意大利版]Interni 著名室内设计杂志 2025年10期
[意大利版]Interni 著名室内设计杂志 2025年10期
2025年精选30种国外【建筑+景观+室内】设计杂志超大合集 全年订阅链接:https://www.eeeetop.com/forum.php?mod=viewthread&tid=75981
  深圳老梁  深圳老梁最后回复于 2025-10-13 室内家居

[意大利版]Domus 高端建筑室内杂志 2025年10期
[意大利版]Domus 高端建筑室内杂志 2025年10期
2025年精选30种国外【建筑+景观+室内】设计杂志超大合集 全年订阅链接:https://www.eeeetop.com/forum.php?mod=viewthread&tid=75981
  深圳老梁  深圳老梁最后回复于 2025-10-13 室内家居

[美国版]Architectural Digest US 建筑辑要 2025年10期
[美国版]Architectural Digest US 建筑辑要 2025年10期
2025年精选30种国外【建筑+景观+室内】设计杂志超大合集 全年订阅链接:https://www.eeeetop.com/forum.php?mod=viewthread&tid=75981
  深圳老梁  深圳老梁最后回复于 2025-10-13 室内家居

[意大利版]Arquitectura y Diseno 建筑与设计 2025年10期
[意大利版]Arquitectura y Diseno 建筑与设计 2025年10期
2025年精选30种国外【建筑+景观+室内】设计杂志超大合集 全年订阅链接:https://www.eeeetop.com/forum.php?mod=viewthread&tid=75981
  深圳老梁  深圳老梁最后回复于 2025-10-13 建筑景观

[英国]Landscape 景观杂志 2025年11期
[英国]Landscape 景观杂志 2025年11期
2025年精选30种国外【建筑+景观+室内】设计杂志超大合集 全年订阅链接:https://www.eeeetop.com/forum.php?mod=viewthread&tid=75981
  深圳老梁  深圳老梁最后回复于 2025-10-13 建筑景观

[西班牙]Revista Trama 建筑设计杂志 2025年09-10期
[西班牙]Revista Trama 建筑设计杂志 2025年09-10期
2025年精选30种国外【建筑+景观+室内】设计杂志超大合集 全年订阅链接:https://www.eeeetop.com/forum.php?mod=viewthread&tid=75981
  深圳老梁  深圳老梁最后回复于 2025-10-13 建筑景观

[新西兰版]Architecture NZ 建筑学 2025年09-10期
[新西兰版]Architecture NZ 建筑学 2025年09-10期
2025年精选30种国外【建筑+景观+室内】设计杂志超大合集 全年订阅链接:https://www.eeeetop.com/forum.php?mod=viewthread&tid=75981
  深圳老梁  深圳老梁最后回复于 2025-10-13 建筑景观

[美国版]Landscape Architecture 景观建筑 2025年10期
[美国版]Landscape Architecture 景观建筑 2025年10期
2025年精选30种国外【建筑+景观+室内】设计杂志超大合集 全年订阅链接:https://www.eeeetop.com/forum.php?mod=viewthread&tid=75981
  深圳老梁  深圳老梁最后回复于 2025-10-13 建筑景观

[美国版]Architectural Record 建筑实录 2025年10期
[美国版]Architectural Record 建筑实录 2025年10期
2025年精选30种国外【建筑+景观+室内】设计杂志超大合集 全年订阅链接:https://www.eeeetop.com/forum.php?mod=viewthread&tid=75981
  深圳老梁  深圳老梁最后回复于 2025-10-13 建筑景观

[韩国版]Space 空间 2025年10期
[韩国版]Space 空间 2025年10期
2025年精选30种国外【建筑+景观+室内】设计杂志超大合集 全年订阅链接:https://www.eeeetop.com/forum.php?mod=viewthread&tid=75981
  深圳老梁  深圳老梁最后回复于 2025-10-13 建筑景观

[德国版]Detail 建筑细部 2025年10期
[德国版]Detail 建筑细部 2025年10期
2025年精选30种国外【建筑+景观+室内】设计杂志超大合集 全年订阅链接:https://www.eeeetop.com/forum.php?mod=viewthread&tid=75981
  深圳老梁  深圳老梁最后回复于 2025-10-13 建筑景观

[德国版]Baumeister 建筑大师 2025年10期
[德国版]Baumeister 建筑大师 2025年10期
2025年精选30种国外【建筑+景观+室内】设计杂志超大合集 全年订阅链接:https://www.eeeetop.com/forum.php?mod=viewthread&tid=75981
  深圳老梁  深圳老梁最后回复于 2025-10-13 建筑景观

官方综合交流QQ群(更多):

240721746

拓筑在线——面向建筑师群体的

设计交流论坛、软件学习社区、资料下载网站及企业服务平台!

微信扫一扫关注我们

微信公众号

拓筑小助手

GMT+8, 2025-10-18 13:51 , Processed in 0.114118 second(s), 26 queries , Gzip On, MemCached On.    拓筑在线 ( 粤ICP备11043922号 )

Powered by Discuz! X3.4  © 2011-2023 拓筑在线

快速回复 返回顶部 返回列表