通知:E拓建筑网正式更名为拓筑在线!

拓筑在线

 找回密码
 快速注册

QQ登录

只需一步,快速开始

微信登录

微信扫一扫,快速登录

Stacking Green的绿色三明治住宅


[版块:参考素材] [分类:大师名家] [复制链接] 报告无效帖子查看: 6266|回复: 16   
拓城校尉|chanley2010 发表于 2012-2-17 15:32:24 | 显示全部楼层
发帖得20e币  e币充值  开通VIP会员  快速免费获取e币
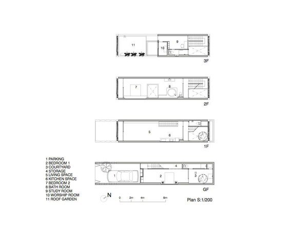
一座位于越南胡志明市的现代住宅,住宅的主人是一对30岁的夫妇和他们的妈妈。住宅呈筒形,宽4米高20米。住宅名为“Stacking Green”,最显著的特征是立面上层层堆积的露台以及上面摆放的大量绿色植物盆景。建筑的绿墙将污染与噪声隔绝在外,将室内的空气净化,阳光穿过绿墙在室内产生斑驳的光影,让人感觉仿佛置身雨林。

1.jpg
2.jpg
3.jpg
4.jpg
5.jpg
6.jpg
7.jpg
8.jpg
9.jpg
10.jpg
11.jpg
12.jpg
13.jpg
14.jpg
15.jpg
16.jpg
17.jpg
18.jpg
19.jpg
20.jpg
拓邑团练|wukuan0609 发表于 2012-2-17 19:41:22 | 显示全部楼层
发帖得20e币  e币充值  开通VIP会员  快速免费获取e币
没看一层的大门前 我都没看出这栋建筑的尺度:P
拓都将军|独毅舞二 发表于 2012-2-17 21:03:35 | 显示全部楼层
发帖得20e币  e币充值  开通VIP会员  快速免费获取e币
哈哈,整天上上下下的,不会很累吗?!
拓邑团练|hx920203 发表于 2012-2-17 21:54:30 | 显示全部楼层
发帖得20e币  e币充值  开通VIP会员  快速免费获取e币
回复 独毅舞二 的帖子

又不是好多层,怎么会好累啊
评分是对别人的鼓励;
回帖、评论要中肯;
分享多了索取也就不会少~~!
拓都将军|独毅舞二 发表于 2012-2-17 22:11:19 | 显示全部楼层
发帖得20e币  e币充值  开通VIP会员  快速免费获取e币
也有4层呀,,嘿嘿,刚只看到它高20米,他们那里的层高是5米的??
拓土新兵|黄婷 发表于 2012-5-12 00:30:31 | 显示全部楼层
发帖得20e币  e币充值  开通VIP会员  快速免费获取e币
空间感觉不错
拓乡士官|haiyanxu2 发表于 2012-6-26 08:57:28 | 显示全部楼层
发帖得20e币  e币充值  开通VIP会员  快速免费获取e币
1、立面简单,室内丰富。
2、土地私有制下的产物,看开间就知道了。
3、我喜欢的自然的院落。
拓邑团练|小叶子 发表于 2013-1-29 16:07:11 | 显示全部楼层
发帖得20e币  e币充值  开通VIP会员  快速免费获取e币
绿色节能建筑,可是影响了视觉吧
拓邑团练|yywlzsm 发表于 2013-2-4 15:08:51 | 显示全部楼层
发帖得20e币  e币充值  开通VIP会员  快速免费获取e币
很经典的建筑,希望会成为大的趋势。
拓土新兵|ying50 发表于 2013-4-15 22:28:54 | 显示全部楼层
发帖得20e币  e币充值  开通VIP会员  快速免费获取e币
好漂亮的小窝。。。
拓乡士官|xiangyang 发表于 2013-4-16 19:28:37 | 显示全部楼层
发帖得20e币  e币充值  开通VIP会员  快速免费获取e币
好棒。美
拓乡士官|matt2rock 发表于 2013-5-21 11:24:51 | 显示全部楼层
发帖得20e币  e币充值  开通VIP会员  快速免费获取e币
空间略显压抑
拓邑团练|heshia001 发表于 2013-5-21 20:27:58 | 显示全部楼层
发帖得20e币  e币充值  开通VIP会员  快速免费获取e币
整天上上下下的,
拓城校尉|陶陶陶子 发表于 2013-6-14 19:39:38 | 显示全部楼层
发帖得20e币  e币充值  开通VIP会员  快速免费获取e币
立面植物还需要人工护理吧?!
拓邑团练|BOBO我爱你1992 发表于 2013-6-15 19:29:51 | 显示全部楼层
发帖得20e币  e币充值  开通VIP会员  快速免费获取e币
很有才,是哪个国家的啊
您需要登录后才可以回帖 登录 | 快速注册 微信登录

Adobe CC 2018 全家福
Adobe CC 2018 全家福
来赶个时髦~ Adobe CC 2018 全家福破解版 拿走不谢[sell=4]链接:http://pan.baidu.com/s/1kUTYesJ 密码:8juy[/sell]
  蜗牛nkh  依然小蜜蜂最后回复于 2025-11-04 图形化处理

我常用的色卡,配色的时候可参考
我常用的色卡,配色的时候可参考
  xxingc  小胖猪美眉最后回复于 2025-11-02 图形化处理

SU模型整理分享~(送我上精华更多分享
SU模型整理分享~(送我上精华更多分享
全部是经过整理的
  g739882953  小胖猪美眉最后回复于 2025-11-02 可视化设计

22J403-1 楼梯 栏杆 栏板(一)
22J403-1 楼梯 栏杆 栏板(一)
22J403-1 楼梯 栏杆 栏板(一) 代替15J403-1
  huazai_1991  丹尼尔最后回复于 2025-10-30 建筑图集

昆明东风里:TOD 上的云南文化策展地
昆明东风里:TOD 上的云南文化策展地
当五星红旗在风中飘扬,在举国同庆的日子里,我们见证着、经历着国家的繁荣昌盛、风华正茂。 七十六年前的今天,当第一面五星红旗在北京天安门广场升起,远
  空间印象  空间印象最后回复于 2025-10-29 建筑师讨论区

以“四维沉浸”导演一场室内亲子乐园的消费游乐戏剧
以“四维沉浸”导演一场室内亲子乐园的消费游乐戏剧
回想一下节日期间,家庭出游群体作为消费主力军,各大亲子室内乐园里人潮涌动、热闹非凡,人气爆棚的景象至今仍历历在目。 ©Hello-SASA 据《2024
  空间印象  空间印象最后回复于 2025-10-23 建筑师讨论区

【By DanielJin】由浅入深学grasshopper BASIC 01
【By DanielJin】由浅入深学grasshopper BASIC 01
大家好,我的《Grasshopper从入门到进阶》课程已经开课了。 有兴趣欢迎关注:https://www.tuozhu123.com/course-54.html 前言:个人由于要出国读研,对参数
  DanielJin  芯茹芷水最后回复于 2025-10-22 参数化设计

解锁桂林新玩法:状元文化如何激活千亿消费?
解锁桂林新玩法:状元文化如何激活千亿消费?
一句“桂林山水甲天下”让广西桂林旅游业长青数百年,也束缚了桂林旅游业数百年,从“靠山吃山”到“坐吃山空”,虽然说法有些极端,但也道破了这些年桂林旅游
  空间印象  空间印象最后回复于 2025-10-22 建筑师讨论区

思考:gh程序修剪曲线
思考:gh程序修剪曲线
最近有童鞋提出的一个gh修剪曲线的问题,虽然用rhino可以简单实现,但用gh思考一下也比较锻炼解题思路。解决方法有简单的,有稍微复杂的,有局限的,有普遍适用
  沧月  veer最后回复于 2025-10-20 参数化设计

grasshopper算容积率
grasshopper算容积率
因为比较初级,写下来一是记录一下避免今后忘记,二是提供初学者一些参考和比较详细的电池说明。 先上一张打包的电池示意图 下个模型玩玩,大家也可以用自己
  xuhuiwen329  veer最后回复于 2025-10-20 参数化设计

我的渲染作品
我的渲染作品
  MrWay  veer最后回复于 2025-10-20 参数化设计

grasshopper的困扰
grasshopper的困扰
作为初学者,现在对数据的工具栏感到很困扰,有些命令看起来就像神秘的黑洞一样深奥,但同时也深深地吸引着我去了解。所以,希望能在若干年以后,我也能自豪地和
  linux0009  veer最后回复于 2025-10-20 参数化设计

大水牛出品GH+ghpython入门教程
大水牛出品GH+ghpython入门教程
资料收集于网络,仅供学习研究。百度网盘下载链接: [sell]链接:https://pan.baidu.com/s/1MjhW_8pvMaiMC5gmwzr8iQ 提取码:4spn[/sell]
  我是大嘴猴  lpggyyds最后回复于 2025-10-20 参数化设计

双曲面拟合plane压弧线单曲的方法及尝试
双曲面拟合plane压弧线单曲的方法及尝试
一直都发的revit做的玩意~~~今天发个gh做的玩意~~~ 前一阵子看群里有人接曲面幕墙的活。就心血来潮想研究下怎么拟合曲面~~~~昨天晚上有空做了一个出来。思
  lzeaf  veer最后回复于 2025-10-20 参数化设计

参数化旋转楼梯(已上传思路图,电池图)
参数化旋转楼梯(已上传思路图,电池图)
网上看到RICHIE大神的作品,模仿一下~全参数控制~起始端为XZ方向上的几个点(见图)然后连线取中点在Y方向上偏移,然后其他形态由GRAPH MAPPER控制,不难,有兴
  S65510630  veer最后回复于 2025-10-20 参数化设计

【学堂 建模】GH编织练习
【学堂 建模】GH编织练习
闲来无事 用GH作了一个编织 GH图 GH版本是0.914的
  yymenh  veer最后回复于 2025-10-20 参数化设计

【SEG出品】GH讲解之Preference(上)
【SEG出品】GH讲解之Preference(上)
首先,很开心的告诉大家,E拓参数化板块有自己的独立域名啦!以后大家可以输入csh.eeeetop.com即可访问参数化板块。 大家没有发现参数化板块的UI比主页要简洁一
  DanielJin  veer最后回复于 2025-10-20 参数化设计

农村自建房造型设计
农村自建房造型设计
前面两个是大致的平面布局,后面是一些想要的风格意向,但是现在造型被限制的很死,场地限制,整体平面布局偏正方形,因为节假日居住的人数较多,目前平面设置了
  安徽阿才  hzl龙最后回复于 2025-10-17 建筑师讨论区

官方综合交流QQ群(更多):

240721746

拓筑在线——面向建筑师群体的

设计交流论坛、软件学习社区、资料下载网站及企业服务平台!

微信扫一扫关注我们

微信公众号

拓筑小助手

GMT+8, 2025-11-7 03:49 , Processed in 0.079243 second(s), 19 queries , Gzip On, MemCached On.    拓筑在线 ( 粤ICP备11043922号 )

Powered by Discuz! X3.4  © 2011-2023 拓筑在线

快速回复 返回顶部 返回列表