通知:E拓建筑网正式更名为拓筑在线!

拓筑在线

 找回密码
 快速注册

QQ登录

只需一步,快速开始

微信登录

微信扫一扫,快速登录

奥胡斯建筑学院 / ADEPT


[版块:项目实践·作品库] [分类:教育建筑] [复制链接] 报告无效帖子查看: 1733|回复: 0   
拓城校尉|出图机器 发表于 2021-10-30 11:10:30 | 显示全部楼层
发帖得20e币  e币充值  开通VIP会员  快速免费获取e币
本帖最后由 出图机器 于 2021-10-30 20:39 编辑

编者按:本文来自微信公众号建日筑闻(ADCNews),欢迎关注。

eee1afa1d437d5238e957510d7b64fd9.gif

390dac6cb04ec1f7fa08ee8815d343ce.jpg
Ramus Hjortshj

adc2276ee48b628706d7d66138d16a2e.jpg

Ramus Hjortshj受到 21 世纪学习新观念的启发,丹麦奥胡斯建筑学院大楼的设计意在打造一个建筑实验、协同合作、工作坊学习的孵化器。建筑的风格很“原始”,看起来像一座工业建筑,但只需一瞥,便可窥见其精致的细节和强大的空间组织所展现的精妙建造方式:比如如何通过建筑材料的选择来定义设计,或者如何让建筑作为容纳活动的灵活框架融入背景。

ed5cdebce550babb0abdf46070204667.jpg

Ramus Hjortshj

5910c972290f732288b52a63e9e56695.jpg

Ramus Hjortshj奥胡斯建筑学院将成为全面学习和探索建筑的实验室。建筑场地前身是一个铁路工场,工业历史的痕迹塑造了一种粗糙真实的建筑特质。建筑设计以其裸露的材质和管线,以及工业细节为特征,完美的适应了凌乱的环境:距离它最近的邻居Institute for X,是一个自建的文化和创业社区。

73713952eed4ca844134ba1bcb454feb.jpg

Ramus Hjortshj

529c80624df8167040b0da939ccc2086.jpg

Ramus Hjortshj设计的有意简化是对学校的功能性和大空间需求的回应,建成后的建筑让导师可以试新的和现代的建筑教育方式,同时提供更强的空间特质,与其成为欧洲最好的建筑学校之一的雄心相匹配。新建筑是学校最好的展示窗口,给了公众了解学校内部的机会,归功于建筑空间组织的方式和建筑内部的高度可见性,专业教室内发生的任何活动都将对所有学生可见。如同空间排布所暗示的,与过去注重隐私和个人空间的建筑教室不同,这是一个鼓励社区融合和协同工作的建筑。

35a49c487c1d6712a70e131531274503.jpg

Ramus Hjortshj

3d2df2d0af2f78b113370b0b2b326080.jpg

Ramus Hjortshj新的奥胡斯建筑学院将之前的十个场所合并到一栋建筑中。设计意愿是打造一个坚固的结构,一个有生命的建筑实验室。ADEPT 的合伙人 Martin Krogh认为,这座建筑被赋予了工坊式的设计灵感,它是去符号化的,是一块用以书写想法、创造力和学习的空白画布。

d5b78fe69c9451c0faea479f28a824c1.jpg

Ramus Hjortshj

2d573c9cbdfd9d05c0fbe8f1d9b34af6.jpg

Ramus Hjortshj

38787ab69291f858497ec042af5c60f6.jpg

Ramus Hjortshj他说:“这不仅是在字面意义上的透明度的探索,而且试图通过对什么是学校的空间,什么是城市的空间的追问,找到室内和室外空间得以融合的契机,这意味着周围的城市环境和课程活动都将在未来参与塑造建筑的外形。这是一座设计本身并不能将其定义的建筑,当有了它的使用者,一切才得以完善。”

c279c7cf22e0770ae60c78aeb70be67a.jpg

Ramus Hjortshj

37cd58cfeab08704ddeecfec4eb736d6.jpg

Ramus Hjortshj

7c23741431184463b814f6a650de37f9.jpg

Ramus Hjortshj

3ac067a588b63737ac592c448a7d68f0.jpg

Ramus Hjortshj该建筑采用了设计一体化的设计方案,遵照追求空间灵活性最大化的设计意图。运用有限的材料颜色,减少了建筑资源的使用,减缓了本地生产和运输链的压力。在应对大尺度空间和弹性空间的需求时,将混凝土作为最佳解决方案。项目团队与制造商的密切合作,也减少了建筑材料的使用,并最大限度地利用了回收材料。此外,制造商也承担起了使用可持续生产方式的义务,鼓励零浪费的建造过程。

30f6da0c49ed6f217233b2b4ce4d0a3c.jpg

Ramus Hjortshj

8dce0aa00053d5986ad0bc5c404be62a.jpg

Ramus Hjortshj

7043da42bda2ab274e94689e1a4b4232.jpg

Ramus Hjortshj其他可持续的举措还包括用建造工业窗户和高度跨越几层楼的图书馆结构时产生的边角料升级改造制成的木地板。图书馆的一部分结构是由回收附近一座历史建筑的框架组成的。建筑物周围的城市环境也是研究项目的一部分,该项目旨在将建设过程的边角料在景观设计中重新利用,测试其对气候的适应能力,以及群落环境从一个位置迁移到另一个位置的影响。与以前的消耗总和相比,学校将减少多达 50% 的能源消耗。

d54e6f30f5414566a7ef5bc5c657f51a.jpg

Ramus Hjortshj

a61090666b8cdc15c2ddbd6a067b725e.jpg

Ramus Hjortshj

aef719aca90dd48dd94ed9fce68e9cc4.jpg

Ramus Hjortshj

f5ea36829190415bdcec78b5b36a20f1.jpg

Ramus Hjortshj

887bdcf5dfae678391869412afde6c37.jpg

Ramus Hjortshj新的奥胡斯建筑学院采用创新的合作模式,以共同创造的设计形式,为建筑行业的跨学科合作指明了另一种方向。这种基于广泛的用户和社区参与的设计,基本消除了项目组织中的内部等级,以保证各种合作中的强大自主权,促进透明的设计过程。

40c557b03c975c7d736b81837e6c8e90.jpg

Ramus Hjortshj

394f9d4837642d8be11d42ec21e3e518.jpg

Ramus Hjortshj

123b2a652314e81b857a0412d90f44ea.jpg

Ramus Hjortshj

79cad42574e0d4fa257ccd9ffed050e5.jpg

Ramus Hjortshj

049c88dd5448decf9db96afee711cc36.jpg

Ramus Hjortshj

2cc1942820e156faee303bcfce06ca52.jpg

Ramus Hjortshj

818f50758bb47dead66ccd32659475c2.jpg

Ramus Hjortshj


项目图纸
463ab0d9e2fe0a7ba8b3db57392ca1fa.jpg

总平面图

1439dc9b7ff1770b2df7b99d04ee2df5.jpg

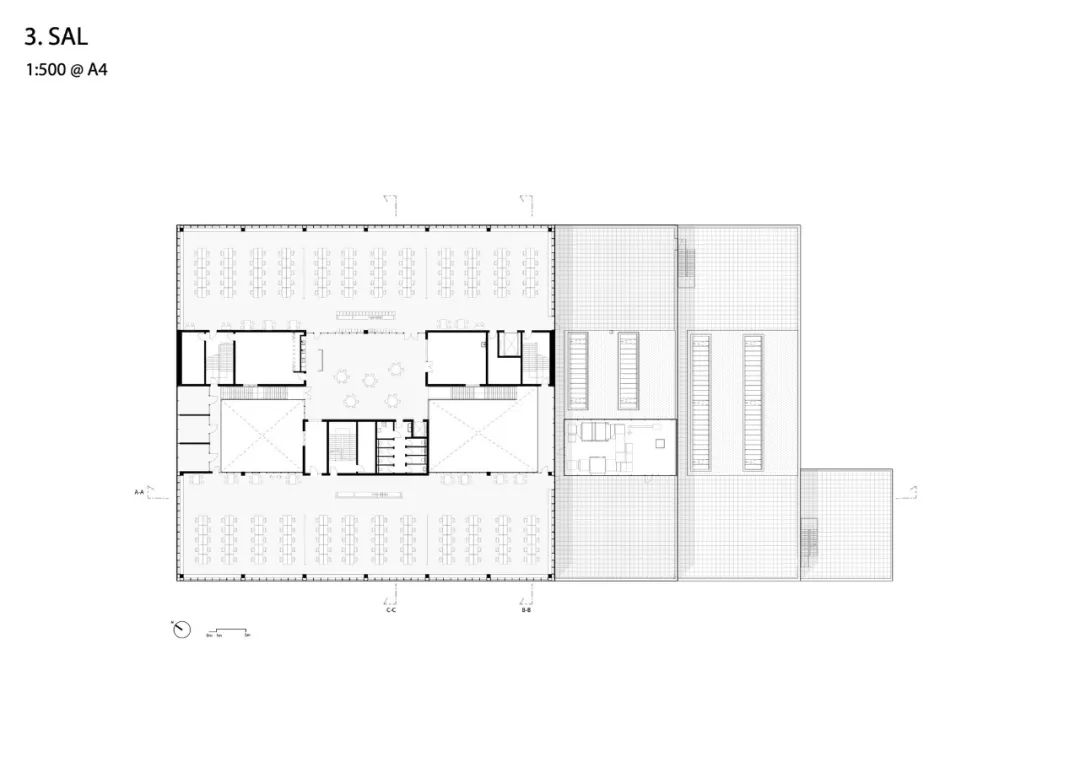
一层平面图

a5c9de18d158081fe5a4094be0b0e8af.jpg

二层平面图

90e1655851137bce100bcdcd66a24c88.jpg

三层平面图

34e99b2b32a5f39b5e509f9b0a155661.jpg

四层平面图

0bdf809e5bbd764e93391afb9626ef0c.jpg

屋顶平面图

a5cfa797cc94f281181cfe2ad6d6bb9a.jpg

剖面图

c69fc62fb02c9fc9bdf33b41e511e87a.jpg

剖面图

24a3b03453edd026d57c2a9920c249e4.jpg
剖面图

c7dbd9167ebab875efb0986d67612473.jpg
东立面图

871ae1414864c71351610b7c654258cf.jpg
西立面图

1cb2e06f5ec38b23d191882ebf433fdb.jpg
南立面图

2c6980101c1c86011ab4d222b49a83a3.jpg
北立面图


项目信息奥胡斯建筑学院 / ADEPT
建筑设计:ADEPT
地址:Exners Plads 7, 8000 奥胡斯, 丹麦
项目年份:2021
建筑面积:12500.0 m
合作建筑师:Vargo Nielsen Palle
其他顾问:Rolvung & Brndsted Arkitekter, Steensen Varming, Lendager Arktekter, Etos Ingenirer
美术设计:Lea Porsager
图书馆设计:Praksis Arkitekter
摄影师:Ramus Hjortshj

编者按:本文来自微信公众号建日筑闻(ADCNews),欢迎关注。

您需要登录后才可以回帖 登录 | 快速注册 微信登录

【By DanielJin】由浅入深学grasshopper BASIC 01
【By DanielJin】由浅入深学grasshopper BASIC 01
大家好,我的《Grasshopper从入门到进阶》课程已经开课了。 有兴趣欢迎关注:https://www.tuozhu123.com/course-54.html 前言:个人由于要出国读研,对参数
  DanielJin  芯茹芷水最后回复于 2025-10-22 参数化设计

解锁桂林新玩法:状元文化如何激活千亿消费?
解锁桂林新玩法:状元文化如何激活千亿消费?
一句“桂林山水甲天下”让广西桂林旅游业长青数百年,也束缚了桂林旅游业数百年,从“靠山吃山”到“坐吃山空”,虽然说法有些极端,但也道破了这些年桂林旅游
  空间印象  空间印象最后回复于 2025-10-22 建筑师讨论区

思考:gh程序修剪曲线
思考:gh程序修剪曲线
最近有童鞋提出的一个gh修剪曲线的问题,虽然用rhino可以简单实现,但用gh思考一下也比较锻炼解题思路。解决方法有简单的,有稍微复杂的,有局限的,有普遍适用
  沧月  veer最后回复于 2025-10-20 参数化设计

grasshopper算容积率
grasshopper算容积率
因为比较初级,写下来一是记录一下避免今后忘记,二是提供初学者一些参考和比较详细的电池说明。 先上一张打包的电池示意图 下个模型玩玩,大家也可以用自己
  xuhuiwen329  veer最后回复于 2025-10-20 参数化设计

我的渲染作品
我的渲染作品
  MrWay  veer最后回复于 2025-10-20 参数化设计

grasshopper的困扰
grasshopper的困扰
作为初学者,现在对数据的工具栏感到很困扰,有些命令看起来就像神秘的黑洞一样深奥,但同时也深深地吸引着我去了解。所以,希望能在若干年以后,我也能自豪地和
  linux0009  veer最后回复于 2025-10-20 参数化设计

大水牛出品GH+ghpython入门教程
大水牛出品GH+ghpython入门教程
资料收集于网络,仅供学习研究。百度网盘下载链接: [sell]链接:https://pan.baidu.com/s/1MjhW_8pvMaiMC5gmwzr8iQ 提取码:4spn[/sell]
  我是大嘴猴  lpggyyds最后回复于 2025-10-20 参数化设计

双曲面拟合plane压弧线单曲的方法及尝试
双曲面拟合plane压弧线单曲的方法及尝试
一直都发的revit做的玩意~~~今天发个gh做的玩意~~~ 前一阵子看群里有人接曲面幕墙的活。就心血来潮想研究下怎么拟合曲面~~~~昨天晚上有空做了一个出来。思
  lzeaf  veer最后回复于 2025-10-20 参数化设计

参数化旋转楼梯(已上传思路图,电池图)
参数化旋转楼梯(已上传思路图,电池图)
网上看到RICHIE大神的作品,模仿一下~全参数控制~起始端为XZ方向上的几个点(见图)然后连线取中点在Y方向上偏移,然后其他形态由GRAPH MAPPER控制,不难,有兴
  S65510630  veer最后回复于 2025-10-20 参数化设计

【学堂 建模】GH编织练习
【学堂 建模】GH编织练习
闲来无事 用GH作了一个编织 GH图 GH版本是0.914的
  yymenh  veer最后回复于 2025-10-20 参数化设计

【SEG出品】GH讲解之Preference(上)
【SEG出品】GH讲解之Preference(上)
首先,很开心的告诉大家,E拓参数化板块有自己的独立域名啦!以后大家可以输入csh.eeeetop.com即可访问参数化板块。 大家没有发现参数化板块的UI比主页要简洁一
  DanielJin  veer最后回复于 2025-10-20 参数化设计

农村自建房造型设计
农村自建房造型设计
前面两个是大致的平面布局,后面是一些想要的风格意向,但是现在造型被限制的很死,场地限制,整体平面布局偏正方形,因为节假日居住的人数较多,目前平面设置了
  安徽阿才  hzl龙最后回复于 2025-10-17 建筑师讨论区

GBT50104-2010 建筑制图标准规范
GBT50104-2010 建筑制图标准规范
GBT50104-2010 建筑制图标准规范
  喜啦啦  喜啦啦最后回复于 2025-10-16 快速发帖

城市更新文本
城市更新文本
放上一些截图 **** 本内容被作者隐藏 ****
  牧野先生  evan298最后回复于 2025-10-15 设计文本

Lumion 10.5 解压即可使用 免断网破解版
Lumion 10.5 解压即可使用 免断网破解版
看到好多小伙伴安装lumion其他版本的时候出现各种各样的问题,因为繁琐的步骤和其他问题总有人安装失败,这次提供的版本解压即可使用,不需要断网 破解 替换文件
  sadapple  18082364985最后回复于 2025-10-15 虚拟化表现

Enscape高级渲染参数预设合集(宝藏参数)
Enscape高级渲染参数预设合集(宝藏参数)
和所有软件的参数预设类似,仅仅需要在场景中简单加载渲染参数,即可得到已经调整好的渲染效果。让效果更上一层楼! 包含百余款渲染
  sadapple  Cialis_最后回复于 2025-10-13 虚拟化表现

[英国版]Wallpaper 设计业权威杂志 2025年11期
[英国版]Wallpaper 设计业权威杂志 2025年11期
2025年精选30种国外【建筑+景观+室内】设计杂志超大合集 全年订阅链接:https://www.eeeetop.com/forum.php?mod=viewthread&tid=75981
  深圳老梁  深圳老梁最后回复于 2025-10-13 艺术设计

[意大利版]Interni 著名室内设计杂志 2025年10期
[意大利版]Interni 著名室内设计杂志 2025年10期
2025年精选30种国外【建筑+景观+室内】设计杂志超大合集 全年订阅链接:https://www.eeeetop.com/forum.php?mod=viewthread&tid=75981
  深圳老梁  深圳老梁最后回复于 2025-10-13 室内家居

官方综合交流QQ群(更多):

240721746

拓筑在线——面向建筑师群体的

设计交流论坛、软件学习社区、资料下载网站及企业服务平台!

微信扫一扫关注我们

微信公众号

拓筑小助手

GMT+8, 2025-10-23 04:32 , Processed in 0.112107 second(s), 20 queries , Gzip On, MemCached On.    拓筑在线 ( 粤ICP备11043922号 )

Powered by Discuz! X3.4  © 2011-2023 拓筑在线

快速回复 返回顶部 返回列表