通知:E拓建筑网正式更名为拓筑在线!

拓筑在线

 找回密码
 快速注册

QQ登录

只需一步,快速开始

微信登录

微信扫一扫,快速登录

2024年密斯奖最终获奖名单公布


[版块:项目实践·作品库] [分类:作品速递] [复制链接] 报告无效帖子查看: 2100|回复: 1   
管理员|深圳老梁 发表于 2024-4-26 10:23:10 | 显示全部楼层
发帖得20e币  e币充值  开通VIP会员  快速免费获取e币

102012of14p34wvwwba1wy.jpeg


2024年4月25日,布鲁塞尔城市/建筑/景观/城市规划信息/文献和展览中心(CIVA)新闻发布会上,宣布了2024年欧盟当代建筑奖|密斯·凡·德·罗奖建筑与新锐类别最终获奖项目:布伦瑞克工业大学校园学习馆 / Gustav dsing + Max hake;Gabriel García Márquez图书馆 / SUMA arquitectura。欧盟委员会代表团、欧盟当代建筑奖国际评审团主席Frédéric Druot、密斯·凡·德·罗基金会公负责人Anna Ramos,CIVA负责人Nikolaus Hirsch出席发布会。





2024年建筑大奖得主:



布伦瑞克工业大学校园学习馆


城市:不伦瑞克,下萨克森州,德国

建筑师:Gustav dsing / 德国柏林;Max hake / 德国柏林

项目客户:Technische Universitt布伦瑞克

功能属性:教育建筑


这栋两层楼高的建筑为学校所有学院的学生提供了学习和工作的空间。学习馆位于校园中心的河边,成为了Audimax楼、历史悠久的主楼和论坛广场形成的主轴线上的一个新地标,很好的融合了学校现有的道路。


102012qhvf2czym8m0hzhh.jpeg

▲项目概览 Iwan Baan


建筑的方形平面布局和紧凑体积体现了设计者一个开放空间的概念,建筑的首层和二层的界限较为模糊,设计者在这里打造了一系列延伸到外部空间的平台和通道。人们可以从9个不同的入口和楼梯分别进入室内空间,这样的设计能够将所有可用空间结合在一起。建筑的外侧是落地的玻璃幕墙表皮,师生能够透过玻璃眺望到学校广场,以及周围的自然景色。


102012x172oi727aosch1a.jpeg


102013q8200omv8pfkx558.jpeg

▲项目鸟瞰 Iwan Baan


疫情过后,学术界发生了很多变化,这栋学习馆作为一个社交空间,回应了“未来大学校园在数字讲座、与人工智能对传统教学模型的挑战下应当扮演什么角色”这个问题。本项目在组织原则方面遵循了上部构造的理念,使平面布局能够进行灵活的调整。这种灵活性使的建筑能够快速响应突发事件,确保其长效性。


102013zhaa4zm4o617lzln.jpeg


102013tyszscaagdynog9g.jpeg


102014rf6rxwfqmq56brxs.jpeg


102014do8cbgmfq5clc6co.jpeg


102015ls12d09d5dccedra.jpeg

▲项目外观 Iwan Baan


为了增强超越个人主义的社区意识,设计者打造了一个平等的空间,各个楼层之间不会相互阻挡,都能获得同样的自然光线。空间中不设置固定的墙壁,师生能够通过独立的楼梯和入口进入,这样能够为各种不同的活动创造独立的区域,例如双层高的空地,和私密的休憩和报告空间。


102016mj5rjimag7d2dgi5.jpeg


102016mg8g9yb8qfb7h9yz.jpeg


102017t91sglis1z8zv91i.jpeg


102017wqu23ucodc0uoguq.jpeg


102017efwy2sltysyywzqh.jpeg

▲室内视角 Iwan Baan


设计者遵循“可拆卸设计”的原则,项目中使用的细长钢木混合结构可完全拆卸。建筑的主要支撑是梁和柱组成的模块化结构,均按照3x3m的方形网格进行建造,这些模块均是由10x10cm的方形空心截面组成。因为嵌入梁架中的木板没有机械连接、也没有进行胶合处理,所以是可拆卸的。



102018y844v4wvw7dz8vmx.jpeg

▲室内视角 Iwan Baan


除了需要对一些平台进行致密化处理外,这座建筑能够以不同形式在不同的地点进行重建,这也符合“未来材料库”的原则,不仅建造材料能够被重复利用,其他的建筑元素,包括立面面板、楼梯和平台,都能在“循环建造”的原则下找到新的用途。


102018vyp2vonopf52i66z.jpeg

▲项目模型 Gustav dsing + Max hake


102019ebppoeepip48bpps.jpeg


102019btz167u1z1tbzk5u.jpeg


102019pnktzf1t7qn12q7n.jpeg


102020mohh5ouxo0hoop5j.jpeg


102021v9atlt68ttzetqv8.jpeg


102021vf4oqqmfjvokwrmi.jpeg

▲项目图纸 Gustav dsing + Max hake





2024年新锐建筑奖得主:


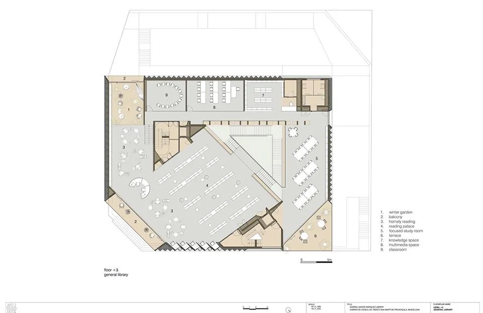
Gabriel García Márquez图书馆


城市:巴塞罗那,加泰罗尼亚,西班牙

建筑师:SUMA arquitectura,马德里,西班牙

项目客户:巴塞罗那市BIMSA

功能属性:教育建筑


图书馆的雕刻造型让人联想到叠放在一起的书籍和折叠的书页。建筑坐落在一处抬高的广场之上,使周围的人行道畅通无阻,并悬挑在空地上,在现有大树的环绕下,创造了一处都市休息区,拓展了人行道和社区的文化轴线。


该图书馆重新诠释了巴塞罗那Eixample街道的特色倒角,将其转译为现在Carmen Balcells广场的十字路口。45度的几何倒角也是南北轴线的几何倒角,贯穿整个图书馆,室内有三角形的庭院和核心区,外墙和天窗采用间接采光,避免正对警察局的视野,而是远眺行道树的景色。


102021rdxwbvdbegpzgid3.jpeg

▲项目概览 Jesús Granada


这栋建筑共5层,占地4,294 m2。三个垂直核心筒贯穿其中,中央为三角形状的顶部采光中庭。图书馆所在的场地位于警察局后方,横跨两条次干道的狭窄三角形地块。有限的占地面积迫使层数的成倍增加,但又避免超出树冠。抬高的地形使首层也能阳光充足,低楼层也可以从后方的花园进入,保持独立。


102022daw5waqoclgobfwq.jpeg


102024cz4w954wbxchw459.jpeg


102025bkc7ua252v5k25mc.jpeg

▲项目外观 Jesús Granada


建筑围绕三角形中庭的三个核心展开,并通过不同的木制桁架连接,内部容纳了最独立的空间,并释放了开放的区域。核心筒的位置和几何形状激活了环绕中庭的人流动线,通过螺旋楼梯增加了图书馆的视野和路线,并将空隙变成一个向心的连接空间。


102025ukoo28x72xgrrgxs.jpeg


102025xavqpamjdvetkwpk.jpeg

▲项目内部 Jesús Granada


该项目通过一项业态功能研究重新定义了当代图书馆的模式。对于生态体系、正式和非正式的场合、本土性与国际化的研究都进行采集分析,进而组合并整体设计,来促进获取、交流和生产知识的经验。从古希腊露天广场的展示柜的到 “思想论坛 ”或 “阅读宫殿”,图书馆是一道风景,一个 “邂逅的转角”,任何人都可以在这里找到自己的存在。

图书馆采用了包含主动与被动在内的大量节能和可持续设计,并获得了LEED金牌认证,比如:可作为太阳能烟囱的中庭;可优化遮阳与自然采光效果的采用树脂包裹的通风玻璃纤维;工业与预制化建造系统;低排放量材料和采用木结构的温室气体储藏室;太阳能光伏板;雨水回收等。


102026wkz05g0g0un59rqp.jpeg


102026bzsggt9s3g48m33t.jpeg


102027sqh9y94y4yhfcq9y.jpeg ▲项目室内 Jesús Granada


木结构不仅满足了承重需求,还提升了空间质量,满足采光要求,同时限定出视线与流线,定义它们的尺度与特征,最终与其他建筑规划要素一起进行整体设计,形成有机的生态系统。结构构成问题从根本上得到了解决,建筑师采用外露层压和交叉层压木材(欧洲迄今为止最大的外露建筑结构),与独特的强化钢材结合,经过专业的细木工匠加工并装配。最终让该建筑集温馨、轻盈和视觉通透感为一体。


102027s9n7g93n99n9dzw7.jpeg


102027bqxebiykcek5be9n.jpeg


102027po7hhrojby5m55tr.jpeg


102028mgyj26kun2bcabzn.jpeg


102028snmto3n9tc9pcz3z.jpeg


102028llifgbgufrr0hu3b.jpeg


102028th0hjyv4wcw04zai.jpeg


102028dggge1j0q4gjzs3b.jpeg


102029wsyhzfa1y3ai1hbi.jpeg


102029q6t6vzap277yntk0.jpeg

▲项目图纸 SUMA arquitectura




密斯奖每两年评选一次,奖金为6万欧元,是欧洲最具威望的建筑奖项。它开始于1987年,目的是突显欧洲建筑师在当代城市开发过程中为发展新的理念和技术做出的贡献。奖项由创意欧洲计划和密斯·凡·德罗基金会共同赞助。

密斯奖颁奖日
包括颁奖典礼在内的EUmies Awards Day将于2024年5月14日在巴塞罗那以及 Palau de Victòria Eugènia的密斯·凡·德·罗馆中举行,届时将开启巴塞罗那建筑周。
密斯奖颁奖日将对公众开放,活动内容如下:
-“密斯奖对谈”:获奖者、入围者、最终入围者、建筑媒体,以及热心观众,将于Palau de Victòria Eugènia的密斯·凡·德·罗馆开启对由本届评审团强调出的新议题做出讨论。
-“密斯奖2024展览”(5月14日至6月16日),展览将展出40件入围作品模型、文本、视频、草图,以及图纸等相关资料,以及所有362件提名作品的摘要;
-颁奖典礼将于密斯·凡·德·罗馆中举行
-Out & About活动,在该活动中40个入围作品的作者将和推动者一起探索建筑,邀请人们在各个入围建筑作品中组织活动,并与大家分享建筑师的经验。该活动由入围建筑师与指导建筑师共同组织。

拓邑团练|basten272 发表于 2024-4-28 08:04:11 | 显示全部楼层
发帖得20e币  e币充值  开通VIP会员  快速免费获取e币
谢谢分享
您需要登录后才可以回帖 登录 | 快速注册 微信登录

【By DanielJin】由浅入深学grasshopper BASIC 01
【By DanielJin】由浅入深学grasshopper BASIC 01
大家好,我的《Grasshopper从入门到进阶》课程已经开课了。 有兴趣欢迎关注:https://www.tuozhu123.com/course-54.html 前言:个人由于要出国读研,对参数
  DanielJin  芯茹芷水最后回复于 2025-10-22 参数化设计

解锁桂林新玩法:状元文化如何激活千亿消费?
解锁桂林新玩法:状元文化如何激活千亿消费?
一句“桂林山水甲天下”让广西桂林旅游业长青数百年,也束缚了桂林旅游业数百年,从“靠山吃山”到“坐吃山空”,虽然说法有些极端,但也道破了这些年桂林旅游
  空间印象  空间印象最后回复于 2025-10-22 建筑师讨论区

思考:gh程序修剪曲线
思考:gh程序修剪曲线
最近有童鞋提出的一个gh修剪曲线的问题,虽然用rhino可以简单实现,但用gh思考一下也比较锻炼解题思路。解决方法有简单的,有稍微复杂的,有局限的,有普遍适用
  沧月  veer最后回复于 2025-10-20 参数化设计

grasshopper算容积率
grasshopper算容积率
因为比较初级,写下来一是记录一下避免今后忘记,二是提供初学者一些参考和比较详细的电池说明。 先上一张打包的电池示意图 下个模型玩玩,大家也可以用自己
  xuhuiwen329  veer最后回复于 2025-10-20 参数化设计

我的渲染作品
我的渲染作品
  MrWay  veer最后回复于 2025-10-20 参数化设计

grasshopper的困扰
grasshopper的困扰
作为初学者,现在对数据的工具栏感到很困扰,有些命令看起来就像神秘的黑洞一样深奥,但同时也深深地吸引着我去了解。所以,希望能在若干年以后,我也能自豪地和
  linux0009  veer最后回复于 2025-10-20 参数化设计

大水牛出品GH+ghpython入门教程
大水牛出品GH+ghpython入门教程
资料收集于网络,仅供学习研究。百度网盘下载链接: [sell]链接:https://pan.baidu.com/s/1MjhW_8pvMaiMC5gmwzr8iQ 提取码:4spn[/sell]
  我是大嘴猴  lpggyyds最后回复于 2025-10-20 参数化设计

双曲面拟合plane压弧线单曲的方法及尝试
双曲面拟合plane压弧线单曲的方法及尝试
一直都发的revit做的玩意~~~今天发个gh做的玩意~~~ 前一阵子看群里有人接曲面幕墙的活。就心血来潮想研究下怎么拟合曲面~~~~昨天晚上有空做了一个出来。思
  lzeaf  veer最后回复于 2025-10-20 参数化设计

参数化旋转楼梯(已上传思路图,电池图)
参数化旋转楼梯(已上传思路图,电池图)
网上看到RICHIE大神的作品,模仿一下~全参数控制~起始端为XZ方向上的几个点(见图)然后连线取中点在Y方向上偏移,然后其他形态由GRAPH MAPPER控制,不难,有兴
  S65510630  veer最后回复于 2025-10-20 参数化设计

【学堂 建模】GH编织练习
【学堂 建模】GH编织练习
闲来无事 用GH作了一个编织 GH图 GH版本是0.914的
  yymenh  veer最后回复于 2025-10-20 参数化设计

【SEG出品】GH讲解之Preference(上)
【SEG出品】GH讲解之Preference(上)
首先,很开心的告诉大家,E拓参数化板块有自己的独立域名啦!以后大家可以输入csh.eeeetop.com即可访问参数化板块。 大家没有发现参数化板块的UI比主页要简洁一
  DanielJin  veer最后回复于 2025-10-20 参数化设计

农村自建房造型设计
农村自建房造型设计
前面两个是大致的平面布局,后面是一些想要的风格意向,但是现在造型被限制的很死,场地限制,整体平面布局偏正方形,因为节假日居住的人数较多,目前平面设置了
  安徽阿才  hzl龙最后回复于 2025-10-17 建筑师讨论区

GBT50104-2010 建筑制图标准规范
GBT50104-2010 建筑制图标准规范
GBT50104-2010 建筑制图标准规范
  喜啦啦  喜啦啦最后回复于 2025-10-16 快速发帖

城市更新文本
城市更新文本
放上一些截图 **** 本内容被作者隐藏 ****
  牧野先生  evan298最后回复于 2025-10-15 设计文本

Lumion 10.5 解压即可使用 免断网破解版
Lumion 10.5 解压即可使用 免断网破解版
看到好多小伙伴安装lumion其他版本的时候出现各种各样的问题,因为繁琐的步骤和其他问题总有人安装失败,这次提供的版本解压即可使用,不需要断网 破解 替换文件
  sadapple  18082364985最后回复于 2025-10-15 虚拟化表现

Enscape高级渲染参数预设合集(宝藏参数)
Enscape高级渲染参数预设合集(宝藏参数)
和所有软件的参数预设类似,仅仅需要在场景中简单加载渲染参数,即可得到已经调整好的渲染效果。让效果更上一层楼! 包含百余款渲染
  sadapple  Cialis_最后回复于 2025-10-13 虚拟化表现

[英国版]Wallpaper 设计业权威杂志 2025年11期
[英国版]Wallpaper 设计业权威杂志 2025年11期
2025年精选30种国外【建筑+景观+室内】设计杂志超大合集 全年订阅链接:https://www.eeeetop.com/forum.php?mod=viewthread&tid=75981
  深圳老梁  深圳老梁最后回复于 2025-10-13 艺术设计

[意大利版]Interni 著名室内设计杂志 2025年10期
[意大利版]Interni 著名室内设计杂志 2025年10期
2025年精选30种国外【建筑+景观+室内】设计杂志超大合集 全年订阅链接:https://www.eeeetop.com/forum.php?mod=viewthread&tid=75981
  深圳老梁  深圳老梁最后回复于 2025-10-13 室内家居

官方综合交流QQ群(更多):

240721746

拓筑在线——面向建筑师群体的

设计交流论坛、软件学习社区、资料下载网站及企业服务平台!

微信扫一扫关注我们

微信公众号

拓筑小助手

GMT+8, 2025-10-23 04:16 , Processed in 0.147948 second(s), 18 queries , Gzip On, MemCached On.    拓筑在线 ( 粤ICP备11043922号 )

Powered by Discuz! X3.4  © 2011-2023 拓筑在线

快速回复 返回顶部 返回列表